Waldhaus - Kontakt

Nachhaltig Wohnen in Holz

In der Karlsruher Waldstadt ist der Bau von bezahlbaren Mietwohnungen in attraktiver Lage geplant: nur wenige Schritte vom Waldrand und von der Tramhaltestelle entfernt. In ökologisch sinnvoller Nachverdichtung vermeidet das Waldhaus Karlsruhe weitere Flächenversiegelung durch Neubauten auf der "grünen Wiese". 

Stattdessen nutzt es vorhandene Infrastruktur. Eine Kita im Erdgeschoss bietet Betreuungsplätze für den Stadtteil und darüber entsteht ein bunter Wohnungsmix für eine gemischte Mieterschaft.

Stadtplan
Wohnzimmer

Bunte Mischung

  • Wohnungen mit 2 bis 4 Zimmern für Paare, Familien und Senioren

  • Altersgerecht wohnen dank Aufzug

  • Zentraler, luftiger Innenhof mit Laubengängen

  • Großzügige Balkone mit Pflanzkästen für viel Grün

  • Blick auf schöne alte Bäume

  • Helle Räume dank großer Fenster

+

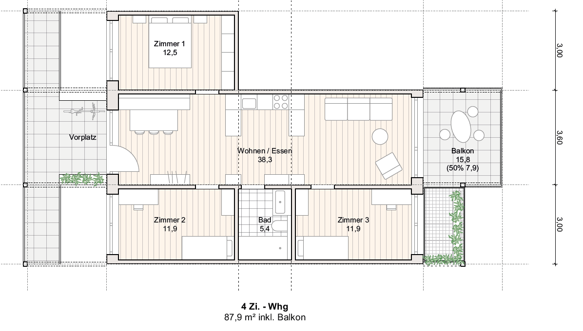
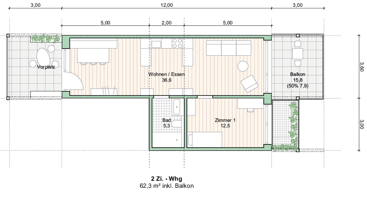
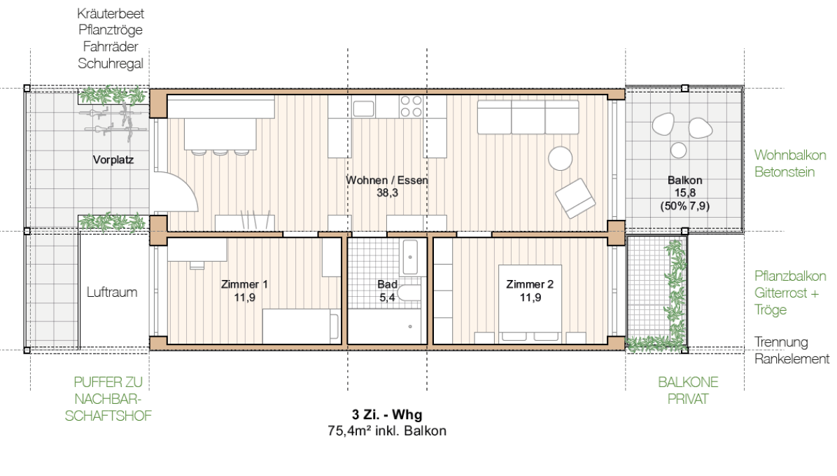
Grundrisse der Wohnungstypen –  modernes Wohnen für Sie

Uebersicht Wohnungen
Uebersicht Wohnungen

Energiekonzept und Nachhaltigkeit

  • Alle oberirdischen Geschosse in natürlicher Holzbauweise

  • Einheimisches Holz aus regionalen Wäldern

  • Geringer Energiebedarf durch Kfw-40-Standard

  • Heizung mit Fernwärme

  • Solarzellen auf dem Dach für Ökostrom

  • Grüne Fassaden dank großzügiger Pflanzbalkone

  • Weitgehender Erhalt der vorhandenen Bäume auf dem Grundstück

+

Fakten auf einen Blick

Wohnzimmer-2
  • 35 zeitgemäße Wohnungen

  • Geförderter Wohnraum mit bezahlbaren Mieten

  • Familien- und altersgerechte 2-4-Zimmer-Wohnungen

  • 5-gruppige Kita im Erdgeschoss

  • Nachhaltige Holzbauweise

  • Begrünte Fassaden

  • Umweltfreundliches Energiekonzept im Kfw-40- Standard

  • Bauherrin und Vermieterin ist die Stiftung Schönau aus Heidelberg, ein traditionsreiches Immobilien­unternehmen mit großem Wohnungsbestand in Baden

+

Interesse geweckt?

Jetzt Formular ausfüllen und virtuelle 3D-Panoramatour der Wohnung anschauen!
Detaillierte Informationen schicken wir Ihnen gerne zu.

Ich bin mit einer Kontaktaufnahme per E-Mail bezüglich meiner Anfrage und der Speicherung meiner persönlichen Daten laut der Datenschutzerklärung einverstanden.**

Ich möchte auch zukünftig per E-Mail über das Projekt Waldhaus Karlsruhe informiert werden.

* Die Darstellungen und Informationen entsprechen dem aktuellen Planungsstand August 2024 und sind nicht bindend.

Logo - WaldhausKarlsruhe
  • Stiftung Schönau
  • Zähringerstraße 18
  • 69115 Heidelberg